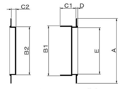
引手サイズ表

以下の表は商品を計測した代表値で、寸法を保証するものではありません。

A,E の値は角の幅

      B1 B2 C1 C2 E
量産 61.6 56.1 54.1 11.7 5.5 1.7 36.6
39.2 32.5 30.9 11.3 5.4 1.5 20.2
骨地 61.6 56.1 54.1 14.2 5.5 1.7 36.6
39.2 32.5 30.9 13.9 5.4 1.5 20.2

見取り図